Sales

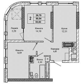
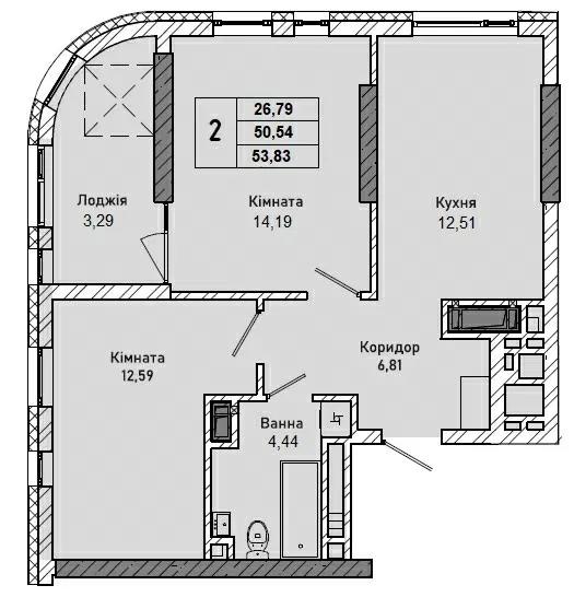
2-bedroom apartment

Lviv city, Shevchenkivskyi region, Миколайчука І. st., 10 floor from 16

Square:54/32/11m2

Ceiling height:m

Count of room:2

Building type: new building

Heating: home building

Benefits: separate

Material of wall: brick

State: without decoration

Room type: isolated

Price for: apartment

2 600 000 uah / apartment

65 000 usd

Code:13079