Оренда

Офісно-адміністративне приміщення

м.Львів вул. Стрийська,

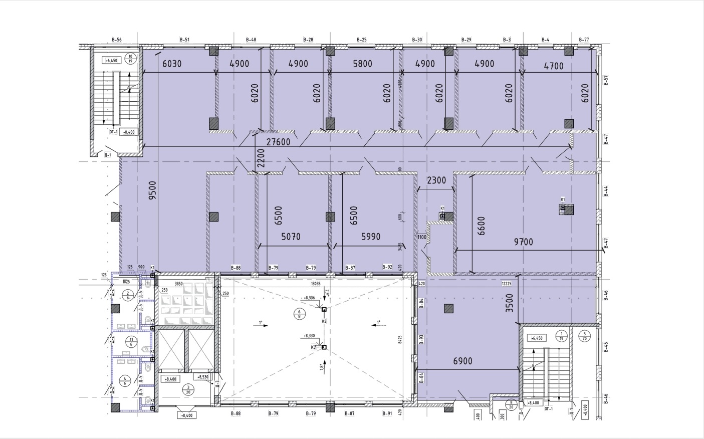
Площа:560м2

Висота стелі:м

Кількість кімнат:0

Тип будівлі: новобудова

Площа ділянки:0

Матеріал стін: цегла

Стан: відмінний

Тип кімнат: ізольовані

Здається в оренду офіс по вул. Стрийська
Загальною площею 560 кв. м
Кабінетна система, зручне планування для офісу, навчального закладу чи представництва
Сучасна будівля з усіма необхідними комунікаціями та інфраструктурою
Зручне транспортне сполучення та паркінг
Вартість оренди 12 $/кв. м (можна з ПДВ) + експлуатаційні витрати +
комунальні послуги.
Здає фірма

480 грн / кв.м.

12 у.о.

Код:12921