Продаж

Будинок

c.Конопниця

Площа:140м2

Висота стелі:м

Кількість кімнат:4

Тип будівлі: новобудова

Опалення: котел двофункційний

Вигоди: роздільні

Площа ділянки:5

Матеріал стін: 5

Стан: без оздоблення

Тип кімнат: ізольовані

Додатково: підвал, балкон

Продаж 1 котеджу-спарка в затишному місці в Конопниці.

Дуже зручний доїзд, від МЕТРО Городоцька 10 хв на авто.

Продається один з двох дуплексів.

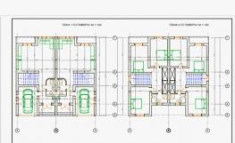
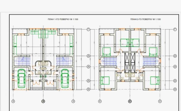
Котедж має 2 поверхи. Площа 140 кв. м.

Земельна ділянка 5 соток.

Гарне продумане планування. На першому поверсі є велика кухня об'єднана з вітальнею, ванна кімната, гараж, також є підвал. На другому поверсі три роздільні спальні і ванна кімната.

Нульовий цикл, можна робити ремонт на власний смак.

5 200 000 грн / об'єкт

130 000 у.о.

Код:13126