Продаж

2-кімнатна квартира

м.Львів, Залізничний район, вул. Вернигори (Привокзальна), 5 поверх з 5

Площа:91м2

Висота стелі:3м

Кількість кімнат:2

Тип будівлі: новобудова

Опалення: котел двофункційний

Вигоди: роздільні

Матеріал стін: цегла

Стан: без оздоблення

Тип кімнат: ізольовані

Ціна за: квартиру

Додатково: лоджія

Без комісії для покупця.

Продаж 2-кімнатної дворівневої квартири в клубному будинку преміум класу по вулиці Вернигори.

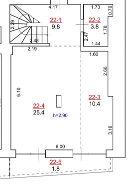
Площа квартири 91,2 кв. м.

Поверх 5/5

Дві просторі ізольовані спальні на другому поверсі, великий гардероб, простора'nbsp; кухня-вітальня, два санвузли, просторі лоджії з панорамним виглядом на Львів.

Будинок преміум-класу. В квартиру підведена електроенергія 9кВТ. Безшумний ліфт, який спускається з паркінг. Стіни поштукатурені, на підлозі проведений підігрів підлоги в кухні-вітальні, ванній кімнаті, коридорі, залита стяжка на підлозі всюди по квартирі.

Підземний паркінг подвійного призначення (укриття), з зарядною станцією для зарядки електромобілів і санвузлом.

В будинку є альтернативне джерело електроенергії і запас води.

Закрита територія, консьєрж сервіс, відеоспостереження, дитячий майданчик.'nbsp;

Будинок збудований, проведені всі комунікації, встановлений газовий котел і всі лічильники. Можна робити ремонт в квартирі.

Є відео-огляд.

Ціна 3000 у.о. за кв.м.'nbsp;

'nbsp;

'nbsp;

10 944 000 грн / квартиру

273 600 у.о.

Код:13140