Продажа

Офисно-административное здание

г.Львів ул. Шевченка Т., 1 этаж з 10

Площадь:11123м2

Высота потолка:м

Количество комнат:0

Тип здания: новостройка

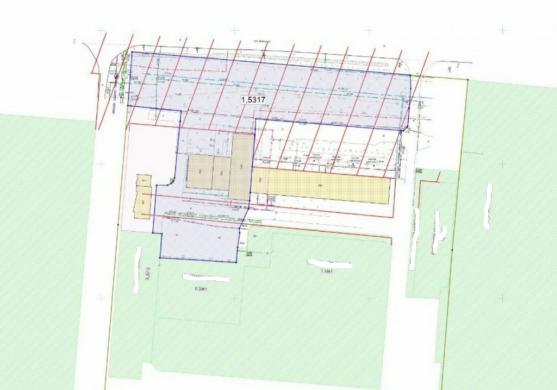
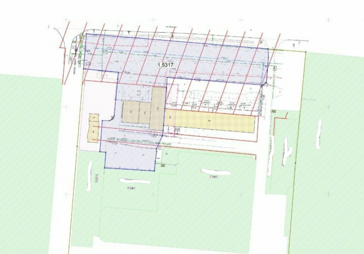
Площадь участка:2

Материал стен: кирпич

Состояние: нуждается в ремонте

Тип комнат: изолированные

56 000 000 грн / объект

1 400 000 у.е.

Код:11768