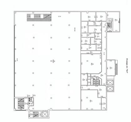
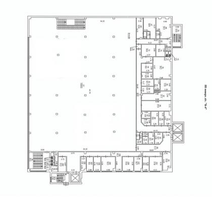
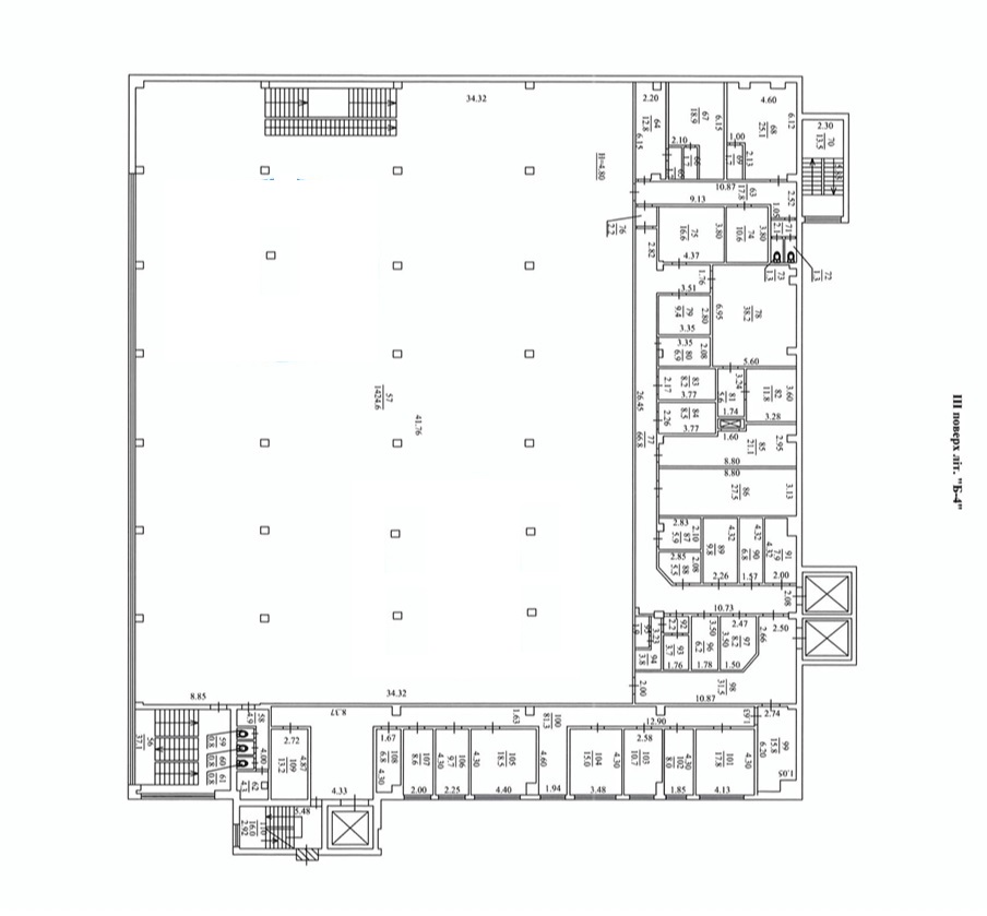
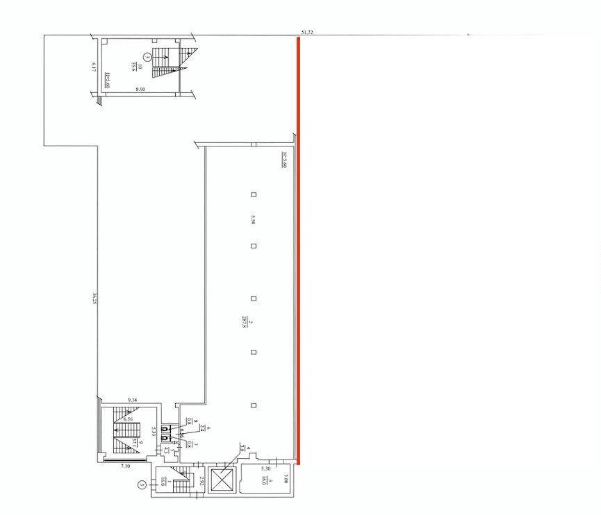
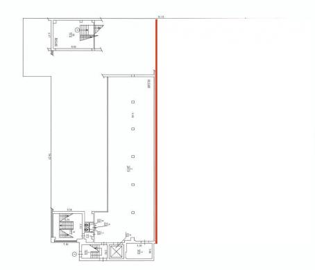
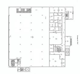
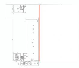
Продажа

Торговое помещение

г.Львів, Шевченковский район, ул. Хмельницького Б., 1 этаж з 3

Площадь:5201м2

Высота потолка:м

Количество комнат:0

Тип здания: новостройка

Площадь участка:55

Материал стен: кирпич

Состояние: отличный

Тип комнат: изолированные

120 000 000 грн / объект

3 000 000 у.е.

Код:12984